Meny
Beliggenhet
Galleri
Artikler
Dokumenter
Boligvelger
Beliggenhet
Galleri
Nyhetsfeed
Dokumenter
Meld interesse
Boligvelger
← Tilbake
Solgt
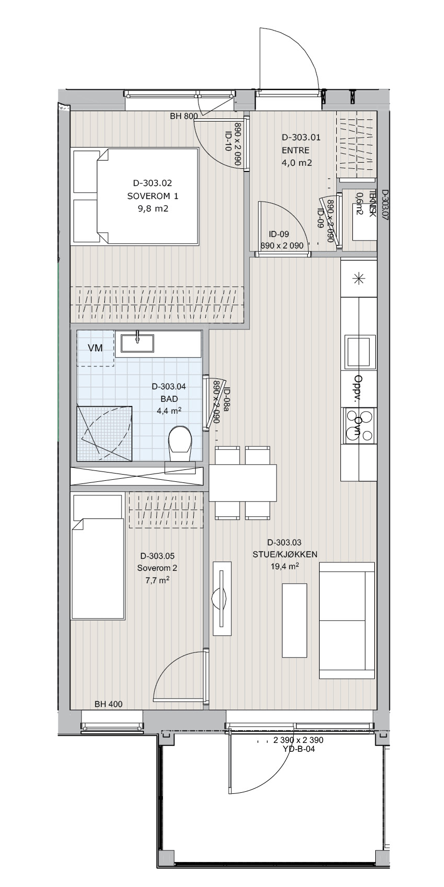
Leilighet
D303
2/3 roms
BRA-i
49
m
2
BRA-e
2,5
m
2
+
m
2
(Sportsbod)
(Sportsbod 5 m
2
og utvendig bod 2,9m
2
)
BRA samlet
51,5
m
2
TBA
7
m
2
(Balkong- og terrasseareal)
Pris
kr
2 900 000
Denne leiligheten kan også leveres med
2
soverom.
Dette kan bestilles som tilvalg innen gitte frister.
Se 3D av leilighet
Jeg ønsker å bli kontaktet!
Jeg godtar at mine opplysninger blir lagret for at megler skal kunne sende meg informasjon om prosjektet.
Takk! Du blir kontaktet.
Oops! Something went wrong while submitting the form.